บางนา บิสซิเนส คอมเพล็กซ์
ภาพรวมอาคาร
อาคารสำนักงาน ฮิตาชิ เซลส์ เป็นอาคารสำนักงานแบบ Built-to-Suit แห่งแรกบนถนนบางนา-ตราด เพื่อตอบสนองความต้องการที่หลากหลายรูปแบบของผู้เช่า โดยสำนักงานแห่งนี้ ประกอบด้วย ห้องจัดแสดงสินค้า ศูนย์บริการหลังการขาย และซ่อมแซม พื้นที่สำนักงาน รวมถึงศูนย์ประชุม และศูนย์จัดการสาธิตสินค้าของผู้เช่า
ด้วยทำเลที่ตั้ง ซึ่งอยู่ระหว่างเส้นทางคมนาคมสู่ท่าอากาศยานนานาชาติสุวรรณภูมิ และ ศูนย์กลางกรุงเทพมหานคร การเดินทางสะดวกสบายด้วยทางด่วนบางนา-ตราด ทางพิเศษยกระดับบูรพาวิถี และ วงแหวนกาญจนาภิเษก อาคารสำนักงานแห่งนี้ จึงเหมาะสำหรับเป็นสำนักงานระดับภูมิภาค ที่สามารถแข่งขันได้ ในระดับสากล
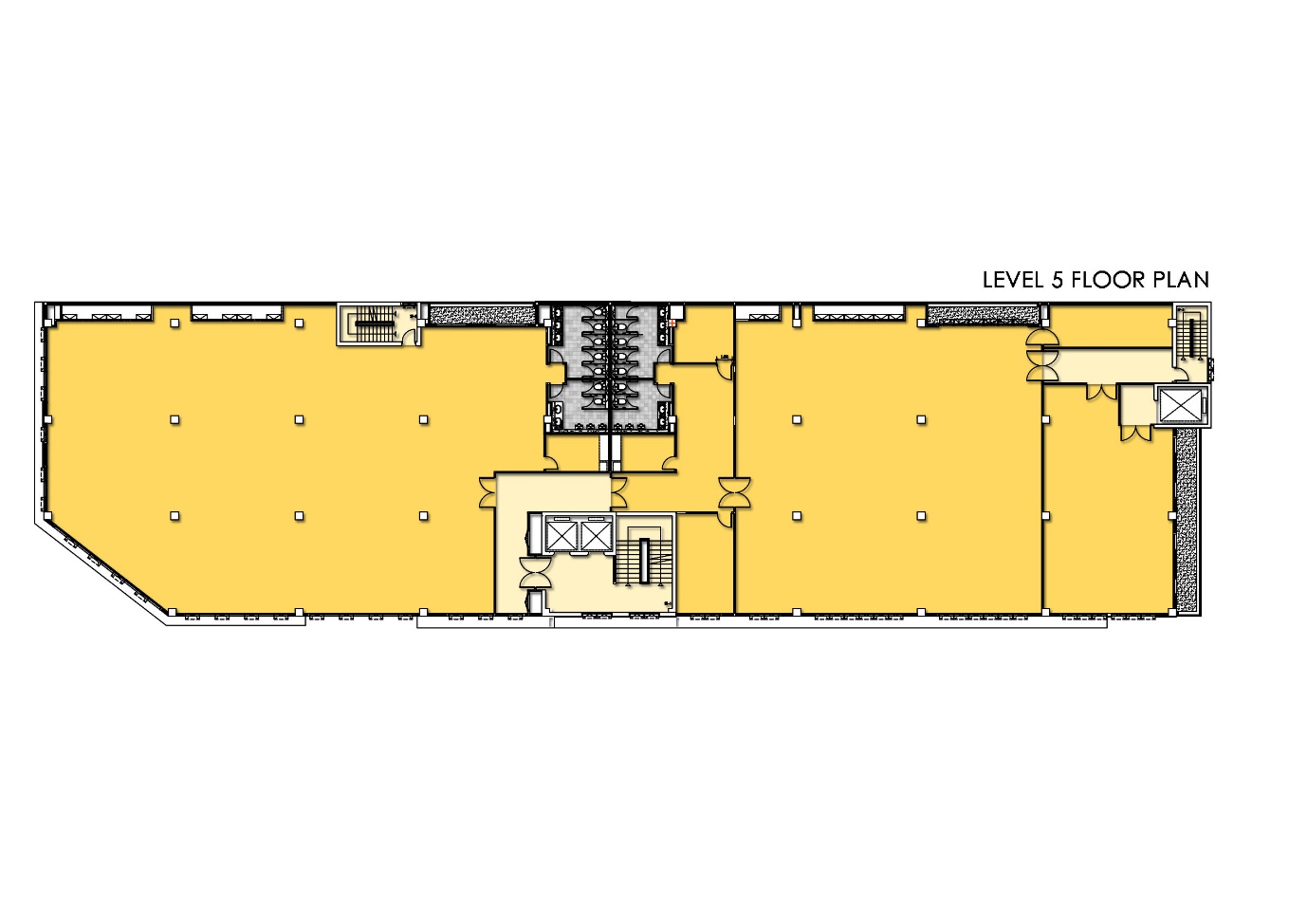
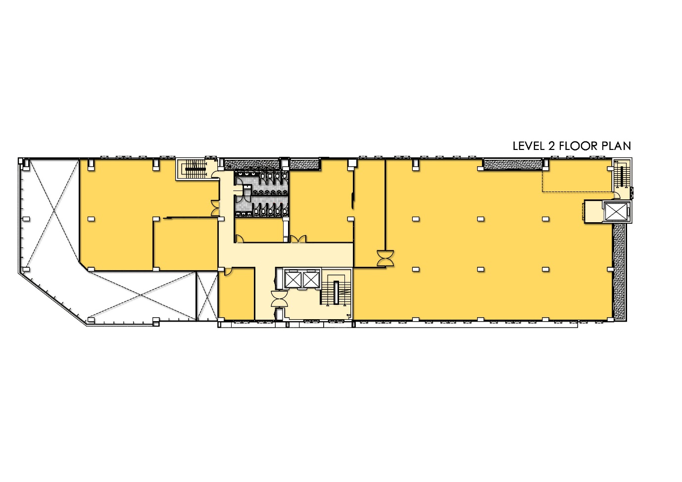
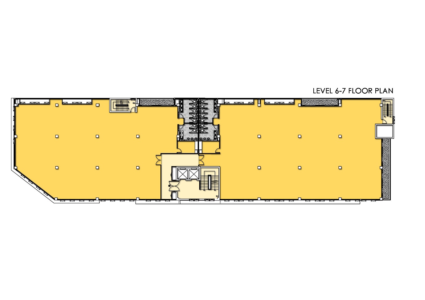
รายละเอียดอาคาร
| จำนวนชั้น | 7 ชั้น |
| พื้นที่ทั้งหมด | 9,875 ตารางเมตร |
| พื้นที่ต่อชั้น | 1,300 ตารางเมตร |
| ความสูงเพดาน | 2.60 เมตร |
| ลิฟท์โดยสาร | 2 ชุด (ขนาดรับน้ำหนัก 1,600 กิโลกรัม) |
| ลิฟท์ดับเพลิง | 1 ชุด (ขนาดรับน้ำหนัก 2,000 กิโลกรัม) |








